Option
Flat,
 Etterbeek
For sale
Flat
Etterbeek
Ref: 7146244

Nouvelle 33 – Triplex

Option
365 000 €
Avenue Nouvelle ,
33 
– 1040
Etterbeek

Overview

Total surface 150m2
Room(s) 4
Bathroom(s) 2

Description

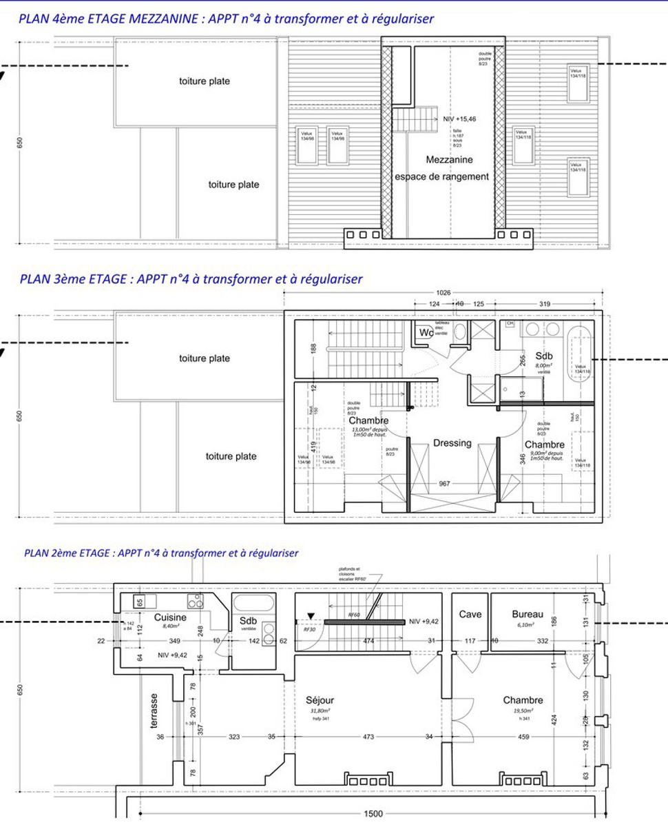
Etterbeek - Leopold Square area - Triplex apartment with 3 to 4 bedrooms + mezzanine (to be created)!
The property currently consists of two apartments which will be combined to comply with the approved building permit.
The complete renovation work is estimated at +/- €225,000 (this can of course be reduced or increased depending on the project and materials considered).
The triplex will comprise an entrance hall, a living room on the first level with access to a south-facing terrace, a separate kitchen, a bathroom with toilet, a bedroom with dressing room and office space; on the upper floor, a hallway leading to a toilet, a bathroom, a dressing room and two or three bedrooms, one of which will have a mezzanine.
A renovation cost estimate is available. The condominium will be established once the units are sold; low common charges are expected. The costs associated with the property division will be shared by the buyers. Energy Performance Certificate: G, 520 kWhEP/m²/year, 104 kgCO²/m²/year.
Located near Flagey, Avenue de la Couronne - Germoir, this property offers easy access to all the amenities of the neighborhood (shops, restaurants, public and shared transport, train station, etc.).
The floor areas given above are approximate; furthermore, the information in this advertisement is not contractual.
3D / virtual images are provided for illustrative purposes only and do not constitute any guarantee regarding the actual condition or final dimensions of the property.
More information about this property is available on our website: www.realtycare.be

General

  • Price 365 000 €
  • Reference 7146244
  • City Etterbeek
  • Type of estate Flat
  • Disponibility Option
  • Status To be renovated
  • Year of building 1909

Configurations

  • Rooms 4
  • Bathroom 2
  • Area total 150 m2
  • Area ground 195 m2
  • Area living 32 m2
  • Area kitchen 9 m2
  • Area Bedroom 1 20 m2
  • Area Bedroom 2 15 m2
  • Area Bedroom 3 10 m2
  • Area Bedroom 4 10 m2

Energy data

  • Energy class
  • EPC Code 20240906-0000689477-01-2
  • E-Spec 520 kWh/m2/an
  • E Total 44295 kWh/year
  • CO2 Emission 104 Co2

Localisation

Avenue Nouvelle ,
33 
– 1040
Etterbeek

Share this estate

Interested in this property?

Reserve Clause

The information provided in the description of the property can in no way be considered as an exhaustive study of legal or technical compliance. RealtyCare’s liability in this respect is limited to an obligation of means, not of result. Any offer received will be subject to the approval of the seller.

Realty Care Property Management - Logo
Ref: 7146244

Nouvelle 33 – Triplex

365 000 €
1040
Etterbeek

Demander une visite

En cliquant sur "Envoyer" vous affirmez avoir pris connaissance de notre politique de confidentialité
Realty Care Property Management - Logo
Ref :7146244

Nouvelle 33 – Triplex

365 000 €
1040
Etterbeek

Request a visit

By clicking on "Submit" you you affirm that you have read ourprivacy policy